1. ВНИМАНИЕ! В течении пары дней +- будет переезд форума на более защищённый сервер. Возможны периодические перебои в работе.

Заполнение технического плана здания

Discussion in 'Технический план' started by Alex_andr, Feb 7, 2012.

  1. Ильшат

    Ильшат Форумчанин

    сотрудник на приеме в кадастровой не смог "привязать" к 1 заявке несколько XML. Сказала, что программа не позволяет. Через портал я отправить тоже не смог: вес пакета более 200МБ
     
  2. Hummel

    Hummel Форумчанин

    Очевидно проблема только в этом. Прикрепить к 1 заявлению несколько тех планов - не проблема.
     
  3. Dmitriy

    Dmitriy Форумчанин

    Спасибо!!
     
  4. Dmitriy

    Dmitriy Форумчанин

    Добрый вечер!
    Есть МЖД в подвале которого подземный паркинг. Контур паркинга полностью выходит за контур дома. По углам паркинга выходы на поверхность. Правильно ли отразить только подземный контур ( специальным условным знаком и дать его координаты) или необходимо отразить на чертеже контур дома и вокруг него контур паркинга ( и дать соответственно в ТП координаты двух контуров). Как понимать " подземные конструктивные элементы включаются в контур".
     
  5. Hummel

    Hummel Форумчанин

    приказ № 403 п. 29 ............Проекция подземных конструктивных элементов включается в контур и схематично отображается в разделах графической части технического плана (если проекция таких подземных конструктивных элементов выходит за пределы проекции наземных конструктивных элементов, подлежащих включению в контур здания).
    В случае если здание является подземным, контур такого здания на земельном участке определяется как совокупность контуров конструктивных элементов такого подземного здания, расположенных на поверхности земельного участка, и контуров подземных конструктивных элементов......

    Я бы пожалуй сделал оба контура (наземный внутри и подземный снаружи + при необходимости контура выходов из паркинга на поверхность). Сам с такой ситуацией не сталкивался, однако как то слышал интересное обсуждение здания, состоящего из нескольких наземных частей, соединенных подземными переходами с подземными помещениями. В том случае тех план здания, прошедший учет, состоял из совокупности 1 большого подземного и нескольких расположенных внутри, и частично совпадающих с ним обособленных наземных контуров.
     
  6. Dmitriy

    Dmitriy Форумчанин

    --- Сообщения объединены, Nov 21, 2015, Оригинальное время сообщения: Nov 21, 2015 ---
    Ок. Попробую. Главное выяснил что это возможно. Два контура один внутри другого. Так понимаю будет 1/2 и 2/2.
    --- Сообщения объединены, Nov 21, 2015 ---
    А продолжить контур возможно? Ну к примеру идёт подземный контур а дальше продолжается надземный ( по аналогии с сооружениями). Просто как писал выше по углам паркинга четыре выхода которые представляют из себя будки с лестницей.
     
  7. Hummel

    Hummel Форумчанин

    (наземный внутри и подземный снаружи + при необходимости контура выходов из паркинга на поверхность)
     
  8. Dmitriy

    Dmitriy Форумчанин

    Это понял. Спасибо. Посто при пересечении подземного контура с надземными выходами из паркинга. Я так понимаю выходы это отдельные контура. А нумерация точек как и в сооружениях к примеру 4(5).
     
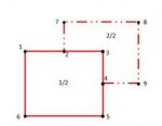
  9. metalnikov

    metalnikov Форумчанин

    Вот так вот рисую. Картинка 2 и 3 по сути разные варианты одного чертежа, в КП мне сказали, что и так можно и сяк можно.
     

    Attached Files:

    • 1.JPG
      1.JPG
      File size:
      10.4 KB
      Views:
      60
    • 2.JPG
      2.JPG
      File size:
      11.8 KB
      Views:
      52
    • 3.JPG
      3.JPG
      File size:
      13 KB
      Views:
      55
  10. Dmitriy

    Dmitriy Форумчанин

    --- Сообщения объединены, Nov 21, 2015, Оригинальное время сообщения: Nov 21, 2015 ---
    Большущее спасибо!!!! А по первой картинке это 1/2 и 2/2. Или это не обособленные контура?
     
  11. metalnikov

    metalnikov Форумчанин

    Первая картинка - это здание у которого подвал больше, чем само здание.
     
  12. Dmitriy

    Dmitriy Форумчанин

    Я это понял. Видно не так выразился. В описании местоположения это один контур или совокупность обособленных контуров ? По участкам я бы пропустил строку и стал бы набивать дальше. У меня был бы один контур. А тут ситуация ваша первая картинка + вторая. Вот и не пойму.
     
  13. metalnikov

    metalnikov Форумчанин

    По Вашему случаю я бы, как один контур показывал. Формировать обособленные контуры 403 предлагает только в том случае, если здание подземное, об этом выше уже писали. Но!, пусть меня поправят, есть ещё мысля, я бы сделал наземную часть+подземную одним контуром, а выходы из парковки показал обособленными контурами, почему-то вот я считаю, что это подземный конструктивный элемент здания, т.е. выходы из парковки это всё таки больше относится к парковке, чем к наземной части самого здания.
     
  14. Dmitriy

    Dmitriy Форумчанин

    Ок. Но если к подземной части тогда зачем дополнительно выделять? Могу ошибаться но мне кажется что выходы это больше наземная часть здания. Парковка это тоже часть здания.
    Или вы имели ввиду выделить их отдельными "наземными" контурами.
     
  15. metalnikov

    metalnikov Форумчанин

    Да, скорее всего это я перемудрил, наверное, можно и одним контуром всё нарисовать.
     
  16. Eugineos

    Eugineos Форумчанин

    Как такой техплан выглядит. Пристроили к дому гараж. Делаем учет изменений, контур добавляется, а площадь остается. Здесь невольно всплывает тема " Общая площадь", где обсуждали вопрос по его включению. Но я мыслю так: помещение нежилое, явно не соответствует требованиям, предъявляемым к жилому помещению, поэтому его не включаем. Но материал стен здания меняется, становится смешанный. То есть в итоге: получается что площадь не меняется, а контур и материал стен изменяются в результате реконструкции. Как вы такой техплан оцениваете????
     
  17. metalnikov

    metalnikov Форумчанин

    А я бы включил площадь гаража в общую, если бы гараж под одной крышей с домом был, я мнение не навязываю, каждый всё равно сделает так, как нужно, но ("6. Общая площадь жилого помещения, жилого дома состоит из суммы площади всех частей такого помещения, жилого дома, включая площадь помещений вспомогательного использования, предназначенных для удовлетворения гражданами бытовых и иных нужд, связанных с их проживанием в жилом помещении, за исключением балконов, лоджий, веранд и террас.), собственно, почему гараж не попадает под это помещение вспомогательного использования, в котором я свои бытовые и иные нужды удовлетворяю?))
     
    Eugineos likes this.
  18. Eugineos

    Eugineos Форумчанин

    не хочу сильно вдаваться в дискуссию, но основной причиной, почему я считаю неправильным включение гаража в общую площадь жилого дома является то, что это жилье становится предметом оборота, где его могут приобретать по жил. сертификатам, субсидиям, для сирот и прочее, где в жилым помещения предъявляются требования, по которым гараж уж точно не проходит. Заметьте, я не пытаюсь продолжить дискуссию неоднозначными выдержками из приказа и прочее, я просто считаю это неправильным.
     
  19. Добрый день.
    Земля и дом в собственности 2х лиц.
    Хотят разделить дом на 2.
    Образование 2-х зданий путем раздела.
    Как это осуществить? 2 техплана будет?
     
  20. 12022012

    12022012 Форумчанин

  1. This site uses cookies to help personalise content, tailor your experience and to keep you logged in if you register.
    By continuing to use this site, you are consenting to our use of cookies.
    Dismiss Notice
  1. This site uses cookies to help personalise content, tailor your experience and to keep you logged in if you register.
    By continuing to use this site, you are consenting to our use of cookies.
    Dismiss Notice